orchard street


Completion: December, 2016
Site: Paris, France
Context: ENSA Paris La-Villette, France. individual Academic Project, BA(Hons) Erasmus year 3, Architecture du Logement Urbain Studio.
Supervisors: P. Martin, R. Heritier.
Tools: AutoCad, Photoshop, InDesign, physical models.


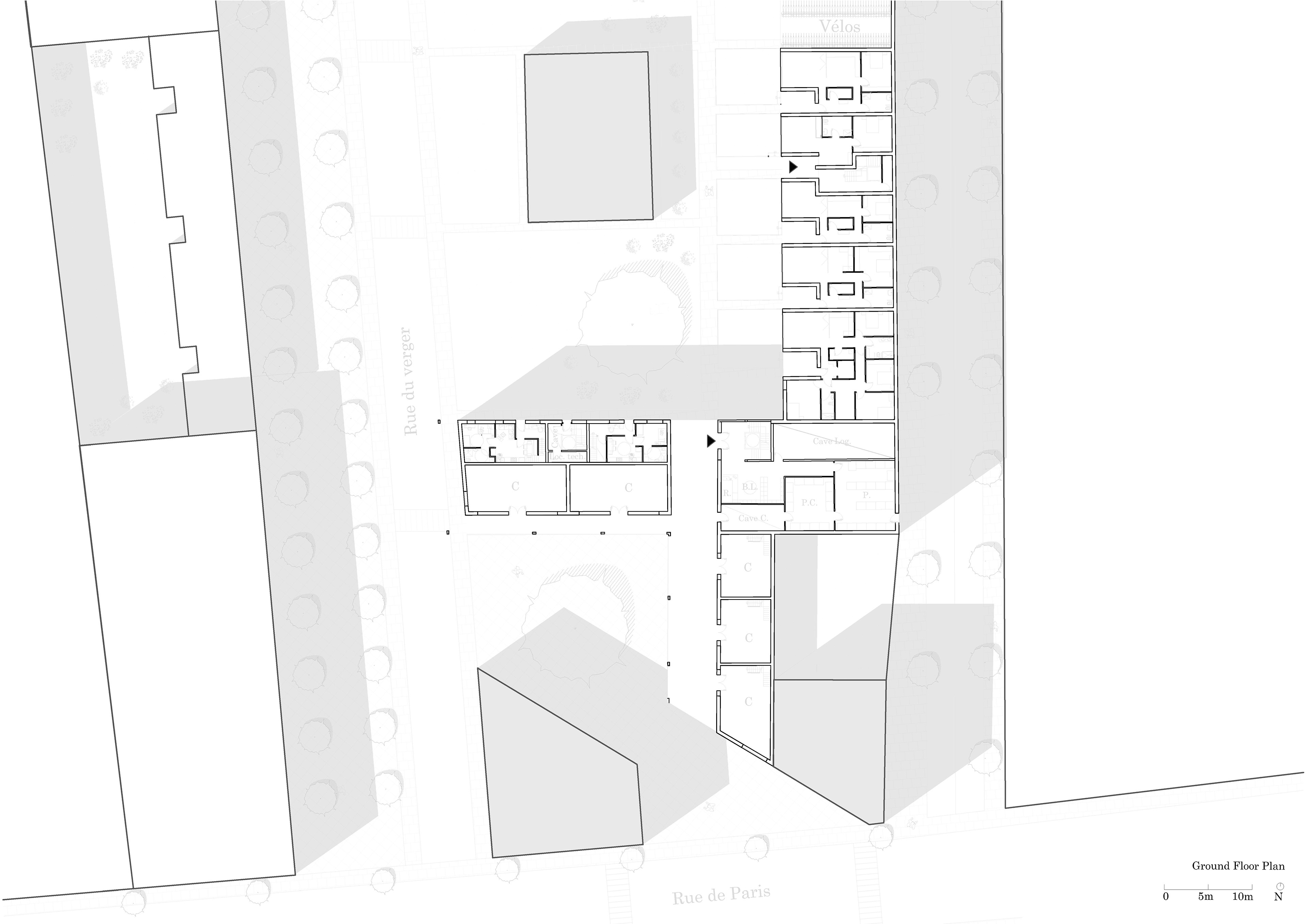
The ‘Rue Verger’, namely ‘Orchard Street’ project foresees a program of urban densification of a one-hectare plot in architectural decay in the Parisian priority suburb of Montreuil, located in the department of Seine-Saint-Denis, in the immediate East periphery of Paris.The masterplan massing originates from the need to create a sense of place, enclosure and belonging, perceived as missing in the neighbourhood, according to the locals. The proposed mixed development project addresses the rapidly growing population in the Île-de-France with collective council housing accessible to all, comprising semi-collective dwellings each with private and shared open spaces. The dwelling units are of average dimensions and cost and showcase attentive consideration of regulation on ‘PLU’ and on access for disabilities. Furthermore the project foresees active fronts with commerce on Orchard Square; an hotel on Rue de Paris; public allotments and greenhouses; municipal equipment on Rue de Verger such as a library with annexed square, nursery, and an extension of the existing theatre with annexed creative hub open to the local youth. This high-density urban design harmonises the design of the new façades with their surroundings, after an inventory of the state of the existing buildings informed which architectural heritage to retain.

Building model at 1:100, south view.

Building model at 1:100, west view.

Project location within Montreuil, neighbourhood in the eastern outskirts of Paris.

Site Plan of Construction Phases.

Ground Floor Plan.

South Elevations on Rue de Paris (1) and square (2).

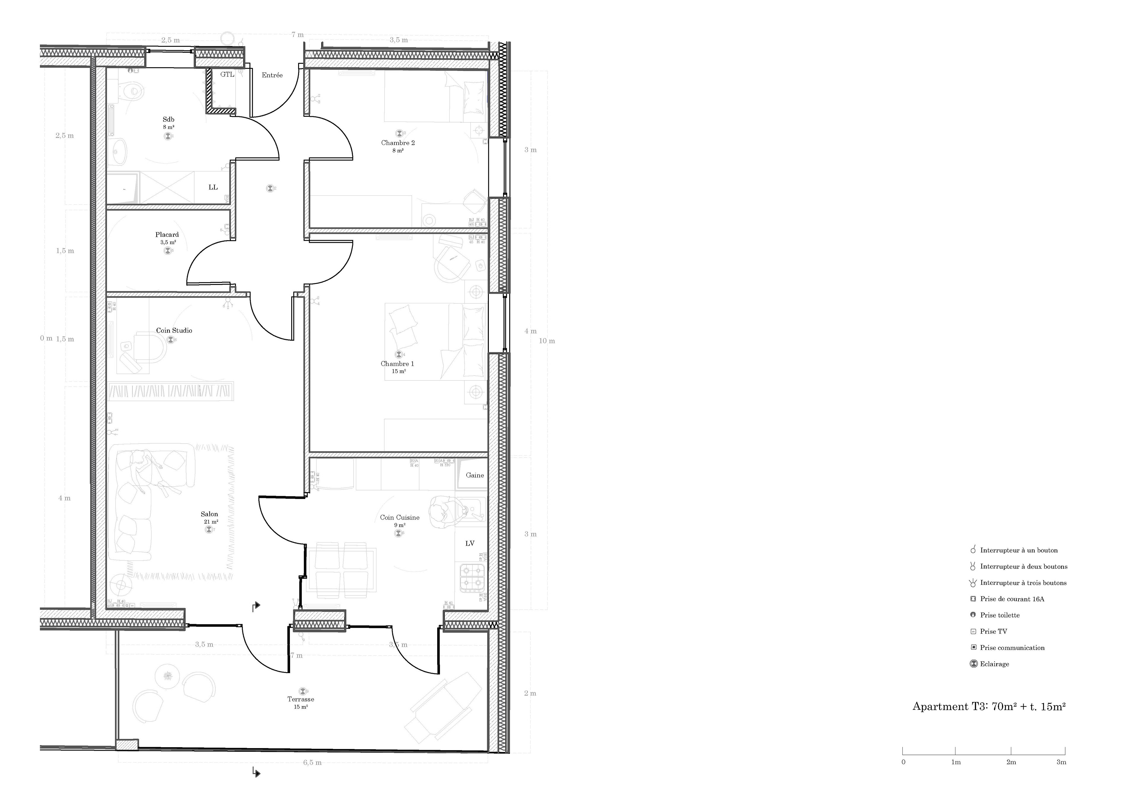
Detail Plan of T3 Apartment Typology.

Detail Section of T3 Apartment Typology.

Back to Top